Просторен мезонет в новострояща се сграда в ж.к. “Банишора”

  • €513,324
ж.к. Банишора, бул. „Cливница“ 159, 1233 София, БългарияВиж на картата
Продажба
Просторен мезонет в новострояща се сграда в ж.к. “Банишора”
ж.к. Банишора, бул. „Cливница“ 159, 1233 София, БългарияВиж на картата
  • €513,324
  • Многостайни имоти
  • Вид
  • 3
  • Спални
  • 3
  • Бани
  • 211.5
  • € 2,428
  • €/кв.м

Загвалие

Многостаен мезонет в модерна жилищна сграда на отлична локация в ж.к. “Банишора”. Сградата се състои от сутерен и седем надземни етажа, включващи общо шест самостоятелни обекта.

Апартаментът е разположен на шести и седми етаж.

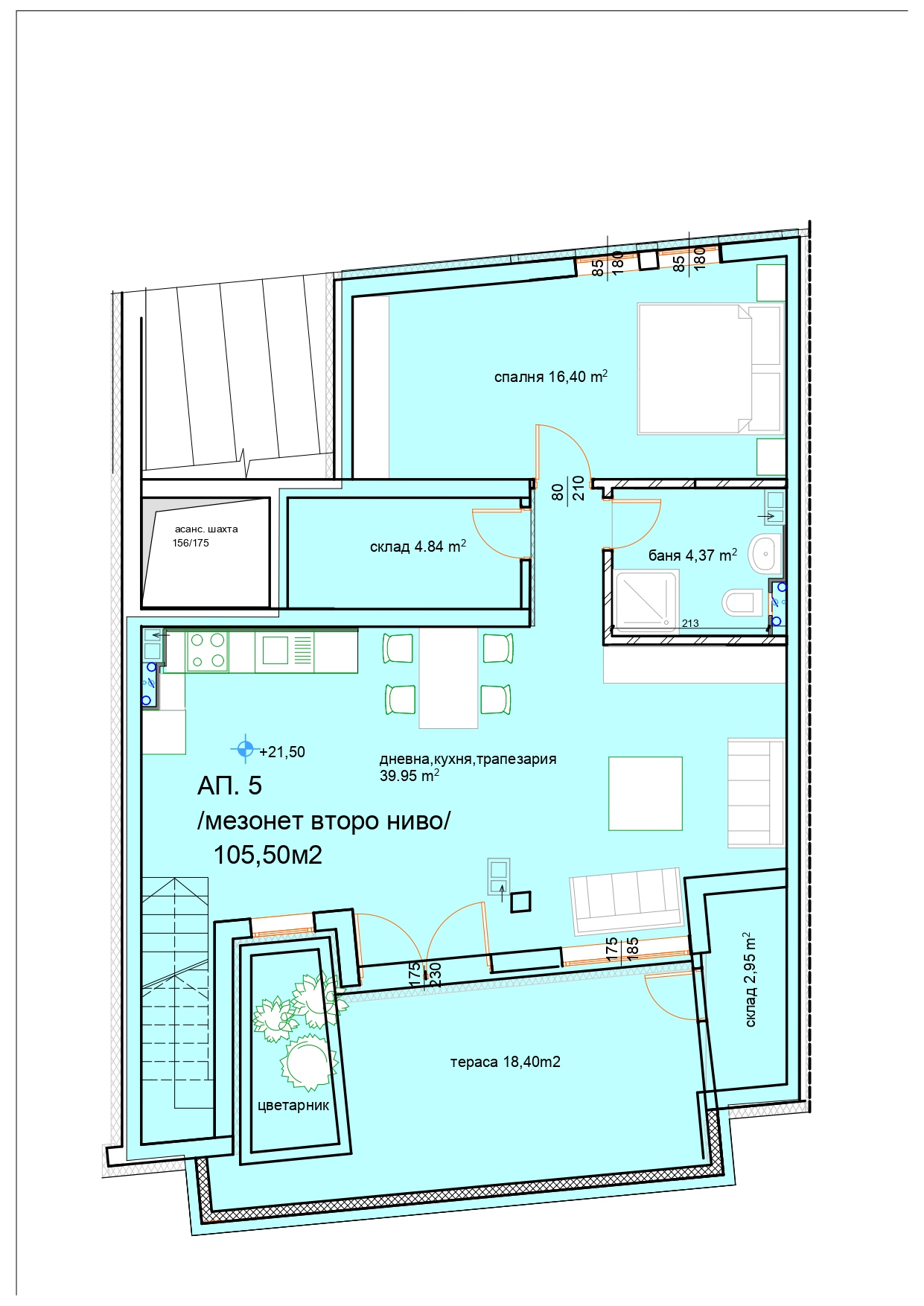
  • Обща площ: 244.44 кв.м (застроена площ – 211.5кв.м + общи части – 32.94 кв.м)
  • Разпределение:
    Ниво 1: Две спални, една от които с тераса, просторна дневна с кухненски тракт ( 33 кв.м), два санитарни възела
    Ниво 2: Една спалня, просторна дневна с кухненски тракт (40 кв.м.), голяма тераса с цветарник ( 19 кв.м. ), две складкови помещения и един санитарен възел
  • Паркиране: Възможност за закупуване на паркомясто на цени започващи от €19 000.

Строителството е започнало през октомври 2024 г. и ще бъде завършено до края на 2026 г. Сградата ще разполага с луксозни общи части и представително фоайе. Фасадата ще комбинира алуминиев композит, структурна мазилка, дървесен декор и естествен камък.

  • Дограма: Висок клас алуминиева дограма на белгийската фирма Reynaers
  • Отопление и климатизация: Мултисплит система климатици
  • Допълнителни удобства: Зарядна станция за електромобили, зони за паркиране на велосипеди
  • Апартаменти: Предлагат се още 3 тристайни апартамента на различни етажи на цени от €287,733.60 с ДДС.

Детайли

Актуализирано на октомври 7, 2025 при 3:16 pm
  • #: F-29155
  • Цена: €513,324
  • Квадратура: 211.5 m²
  • Площ: 244.44 m²
  • Спални: 3
  • Стаи: 5
  • Бани: 3
  • Година на построяване: 2026
  • Вид: Многостайни имоти
  • Статус: Продажба
  • Етаж: 6
  • Общо етажи в сградата: 7
  • Височина на таваните(м): 2.7
  • Дограма: Алуминиева
  • Обзавеждане: Необзаведен
  • Отопление: Ток
  • Изложение: Юг
  • Брой балкони / тераси: 2
  • ДДС: Със ДДС
  • Предназначение : Жилище
  • Настилка: Друг
  • Етап на строителството: В строеж

Прилежащи части

  • Допълнителни пространства: Мазе
  • Заключване мазе: Да

Информация за сградата

  • Година на построяване на сградата: 2026
  • Вид строеж: Тухла
  • Допълнителни детайли за сградата: Луксозно завършени общи части с представително фоайе. Зарядна станция за електромобили.. Подземни паркоместа с хидравличен подемник и модерна паркинг система. Висок клас алуминиева дограма REYNAERS с троен стъклопакет за отлична шумо- и топлоизолация. Подовите настилки са: естествен камък за входа на сградата, стълбищата и площадките, бетонови павета на циментов разтвор за прохода към подемника за автомобили, шлайфан бетон за паркоместата, подхода към тях и мазетата.

Условия за продажба

  • Цена: €513,324
  • Предназначение : Жилище
  • Квартал Банишора, Център

Удобства

Удобства на сградата

Сходни обяви

Сравнете обявите

Сравнете
nevena
  • nevena